一、产品概述
本公司自主研发的SRM6-12全绝缘充气式环网开关设备,已经通过..高压电器试验中心型式试验。产品广泛用于10kV/6kV配电系统,是城乡各类用户变配电系统的..开关产品。开关柜为模块化单元模式,可根据不同用途进行组合;由固定式单元组合与可打展型单元两大类,满足各种变电站对紧凑型开关柜灵活使用的需要。
SRM6-12全绝缘充气式环网开关设备是- -个完全密封的系统,其所带电部件以及开关封闭在不锈钢的本体内。整个开关装置不受外部环境条件影响,从而可以..运行可靠性及人身..。并且实现了免维护。通过选择可扩展母线,可以实现任何组合,达到全模块化。扩展母线..绝缘和屏蔽,..了可靠性和..性。SRM6-12 全绝缘充气式环网开关设备同时可以提供TV化的自动化解决方案,形成了智能化开关的概念,并将现场安装及调试工作量降到.低。
SRM6-12全绝缘充气式环网开关设备分为非扩展标准配置和可扩展标准配置。由于具有全模块和半模块的组合性以及自可扩展性,因而具有极特殊的灵活性。
SRM6-12全绝缘充气式环网开关设备执行GB标准。在室内条件下(20°C )运行的设计寿命超过30年。
二、产品主要特点
1.技术说明
SRM6-12 SF6气体绝缘高压交流金属封闭开关设备安装在一个镀锌板框架上, 开关单元在SF6气箱内,气箱由抗腐蚀和无磁性3mm厚不锈钢板制成。SF6气箱是一个”密封压力系统在正常工作环境下可运行30年。SF6 气体正常工作时压力为0.15-0.4bar.气箱装有压力释放装置,当
压励过高时..气体能从底部或后部释放。
2.开关单元
负荷开关采用同轴旋转双断点方式,通过同一操作孔与滑板配合进行动能操作,因此开关在任一时刻只能处于 “合闸、分闸、接地”三种状态的其中之一,彻底避免误操作。
3.操作机构
开关的操作机构安装在气箱外的前部,经特殊工艺处理,防锈蚀,方便手动操作及维护,并很容易实现电动操作。
三、性能指示


四、技术参数

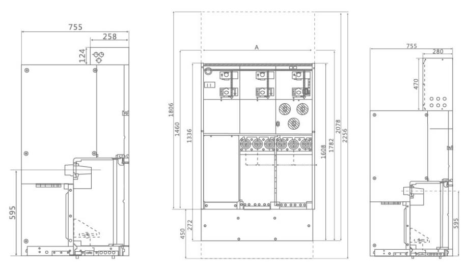
五、充气柜结构以及尺寸

